一、招商单位:长沙888集团恒伟置业有限公司
项目介绍: 本项目位于洋湖国际新城连塘路与丰塘路交汇处的东南角,距离地铁3号线洋湖湿地站约100米,周边商业环境较成熟。该物业预计将于2023年上半年建成交付。
二、商铺描述:
1、商铺基本信息: ?
(铺位产权面积以最终的测绘报告为准)
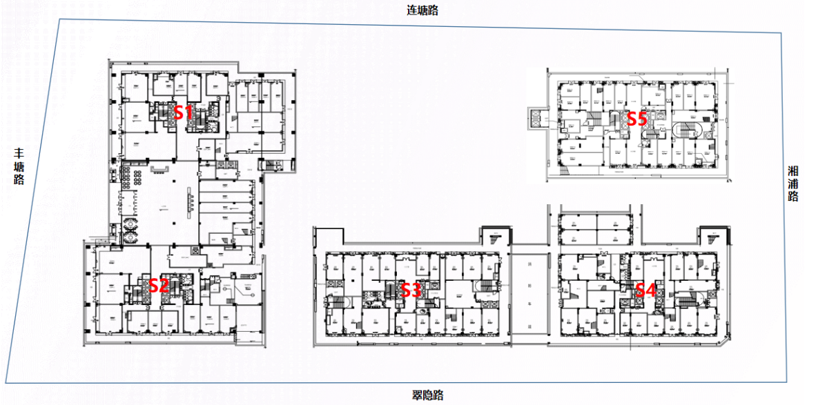
2、商铺户型示意图:
?
三、招商简章:
1、招商对象:有先进经营理念、良好经营实力和丰富经营经验的品牌;
2、招商业态:写字楼商业配套,涵盖品牌餐饮、生鲜水果业态、生活便利业态、食堂、健身房等;
3、招商要求:符合项目定位要求,项目设计方案需甲方审批同意方可执行;
4、租赁年限:3-5年。
四、招商联系方式:
1、联系人:徐女士?18674830576?李先生 18711001212;
2、联系地址:长沙市岳麓区翠隐路星雅韵营销中心。
五、招商公示期:
2022年11月14日起至2022年11月21日;
六、招商方式:
招商信息发布后在公示期内报名响应的人选在2个或以上则采取集团招采交易平台(场所)公开招租、进场交易的方式确定承租方,如只有1个报名响应,则以商务谈判方式确定合作条件及承租方。
七、投诉联系方式:
1、联系部门:长沙888集团恒伟置业有限公司产业协作部(商业);
2、联系电话:0731-88279146;
3、联系地址:长沙市岳麓区先导路湘江时代A1座2层。
八、举报联系方式:
1、联系部门:长沙城市发展集团有限公司纪检监察室;
2、联系电话:0731-88797919;
3、联系地址:长沙市岳麓区先导路湘江时代A1座13A层。??
??
?长沙888集团恒伟置业有限公司
???????????????????????2022年11月11日