长沙888集团商业管理有限公司 南郊生活广场18号等28家商铺招商公告
发布时间:2024-09-23 15:06 打印文件

一、招商单位:长沙888集团商业管理有限公司

二、资产价值描述

项目位于长沙市天心区书院南路73号,南二环和书院路交汇处。整体定位为长沙首家公园式社交购物中心,将公园绿意引入商业空间中,着重打造“店即景,景即店”的沉浸式的购物体验。在业态布局方面,将重点引进以家庭为核心的生活体验,汇集多种商业样态于一体,带给长沙消费者“社交购物生活”新主张。

三、招商位置描述

现有5间商铺租赁合同即将到期,23家商铺空置招商,铺位情况详见下表

image.png

image.png

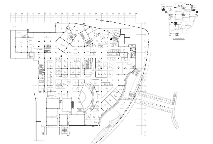
四、商相关图纸

image.png

image.png

image.png

、招商简章

1.招商对象:有先进经营理念,良好经营实力和丰富经营经验的品牌经营者;

2.招商业态:涵盖零售、餐饮、家庭娱乐等业态

3.交付方式:现状交付。

六、关于报名有效性的说明

第一步:网上登记,在招采平台(https://erp.csudgroup.com:9982/)发布的招商公告内点击“我要报名”,登记业态品牌名称、联系人及联系方式;

第二步:登记成功后在招商公示报名期内至南郊生活广场管理处提交公司介绍及品牌资料,并就意向商铺进行初步商务洽谈;

第三步:双方洽谈后在招商公示报名期内提交租赁意向函,并缴纳意向金(意向商铺2个月租金)至指定账户,以上三步均完成后方视为有效报名。

、招商联系方式

1.联系人许先生18627567588

2.联系地址:长沙市天心区书院南路73号南郊生活广场管理处。

、招商公示及报名期

2024925日至2024929日下午17:00截止

九、投诉联系方式

1.联系部门:泓盈集团党群工作部;

2.电子邮箱地址: jubao@hollwingroup.com;

3.联系电话:0731-82250508;

4.邮政编码:410217;

5.通讯地址:长沙市岳麓区枫林三路49号西中心T1栋写字楼20楼2017室党群工作部。

?

?

长沙888集团商业管理有限公司

??????????????????????????2024920